
本次设计方案来自三里屯soho地下一层广场相邻的两家简餐店,两家店有着同一位主人,可以说是兄弟餐厅,“山海亦可平”“轻茶淡范儿”两个极具特色的店名也可以看出店主人的文化涵养。迥然不同的两种设计风格在同一位设计师手中倾情展现,让两家简餐店互为表里,跨出一步便是另一个世界。

山海亦可平,这是一家日式风格的甜品店。

进门处是一条闪闪发亮的玻璃栈道,玻璃层下绿意蓬勃的草坪上洒落鹅卵石,小径通幽处,意境由生。

木质屏风、灯具墙饰,众多日式元素饰品点缀空间,突出着日式风格的主题。

屏中自有新天地,壁画中奔袭的浪潮铺面而来,仿佛能嗅到微咸的海气。

临窗望景,悠然自得。

由于层高较高,店内多处使用墙面与顶部一体化的木质装饰,木排同时起到半隔断的空间效果,隔而不断,让空间更加通透。

吊篮景观区,富士山下樱花盛开,樱花是爱情与希望的象征,代表着高雅,质朴纯洁的爱情。樱花宛如懵懂少女的,安静得在春天开放,满树的白色粉色的樱花,是对情人诉说爱情的最美语言。

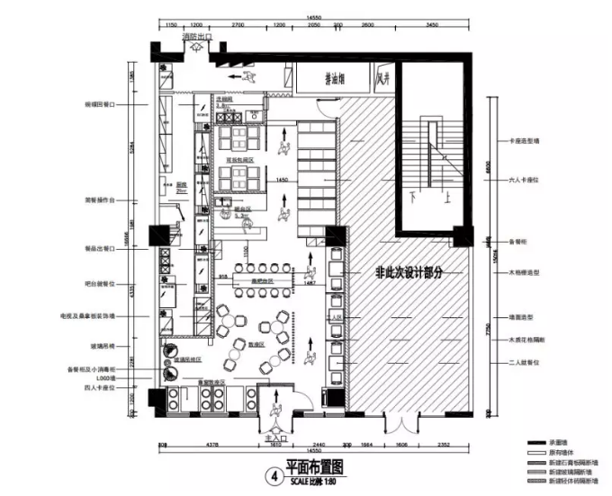
【汇美案例】山海亦可平
案例地点:三里屯SOHO地下一层广场
案例面积:140平方米
汇美设计师:郑敏

轻茶淡范儿,轻工业风格的法式简餐店。


工业风水泥墙面,下层的白板墙饰,顶面喷黑,吊灯装饰别具特色富有奇幻色彩。墙面的假窗装饰与桌面的玩偶略显童趣,带来了反差美感。


多处绿植装饰的巧妙运用,吊兰藤蔓,墙饰插花以及绿植墙面。设计师在工业风的设计中,营造出了清新田园范的绿色体验。

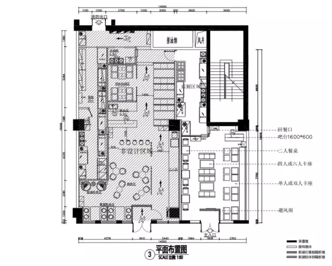
【汇美案例】轻茶淡范儿
案例地点:三里屯SOHO地下一层广场
案例面积:100平方米
汇美设计师:郑敏









